
Via Ferdinando Innocenti, Ponte Mammolo, Municipio Roma IV, Roma, Lazio, 00156, Italia
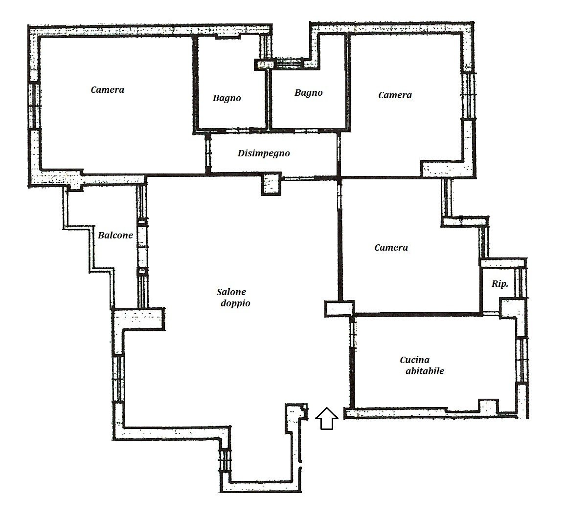
Casal de’ Pazzi – Kant, Via Ferdinando Innocenti, ad,.nte il Parco d’Aguzzano in contesto tranquillo, proponiamo in vendita appartamento unico sul piano di 130mq., composto da: salone doppio, cucina abitabile con ripostiglio, 3 camere, 2 bagni (entrambi finestrati) e balcone. Completa la proprietà una soffitta e posto auto in autorimessa condominiale. Immobile in piena proprietà – già affrancato.
Le presenti informazioni non costituiscono elemento contrattuale.La nostra agenzia si trova in Via Egidio Galbani n. 65 (fronte Terna).Orario ufficio: L-V 9:30 - 13:00 - 15:30 | 19:30 – Sab 9:30 – 13:00.
€275.000
Aggiunto: Maggio 12, 2023
Vendita appartamento Via Giuseppe Gavazzi
Vuoi vendere casa? Fai una valutazione con noi!